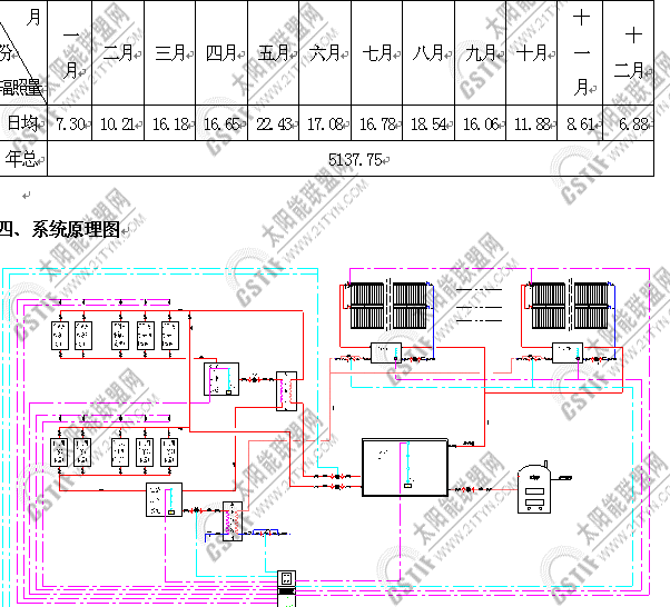
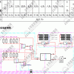
上海太阳能工程-上海湘宸太阳能公司15821413123是一家以太阳能热水器生产为主的太阳能工程厂家,公司在太阳能行业有做过的工程案例有:平板太阳能热水器,阳台壁挂式太阳能热水器,分体太阳能,平板分体太阳能热水器工程,等,公司承接太阳能热水器工程,太阳能采暖,太阳能发电,太阳能空调等。 如果您有这方面的需要,我们可以免费给您勘察现场,给您免费做方案与预算报价等,一套太阳能热水工程设备系统,所投资成本是现在所用能源三年费用的上一套太阳能热水工程设备,前三年收回投资成本后可以免费使用七到十年以上,节能环保省钱看得到。 一、工程概况 用水情况: 青岛某某毛巾厂印花车间和漂染车间用热水;每天用热水500吨,温度60~120℃不等;漂染车间共10多个水罐,每个容水量为3吨,每天24小时不定时换水约八次,共250吨;印花车间约10个容水量为4吨的罐,每天24小时不定时换水约六次,共250吨;二车间共每天用水500吨;每次用完水,将水排放掉,其中35%排放水的余热90℃以上,其余排放水在60℃以上。 工程改造内容: 以太阳能热水系统提供60~70℃基础水温的水500吨,同时考虑车间每天500吨废水的余热回收。 二、本方案设计指标: 1.本系统以秋分所在月9月份为设计基准; 2.根据厂区屋顶状况,本项目采用JPS-60TX21-33°型三高集热站84组,JPS-30TX21-33°型三高集热站577组,JPS-30TX21-00°型三高集热站295组,总集热面积为5595㎡,在集热器倾斜面辐照量大不低于20390KJ/㎡的条件下,能提供(46℃~70℃)的热水500吨,综合回收废水余热,整个系统每天可以提供3203万大卡,不足部分以原蒸汽系统补充。 三、气象资料 1、基础水温:15℃ 2、全年太阳辐照情况 根据国家气象中心2001年提供的全国各地日均及年总辐射数据(单位MJ/m2),因为青岛没有气象观测站,我们选离青岛近的烟台观测站作为参考(区站号54764,东经121o15ˊ,北纬37o30ˊ)太阳辐照量情况如下: 运行原理说明 1、系统简介 青岛喜盈门集团第四毛巾厂厂区内,共有20个可利用安装太阳能热水系统的屋面,本系统由15个集热分系统组成,分系统的热水汇集到供水水箱,供水水箱采用3个50m3的HDG水箱并联使用,HDG置于地面的空旷处或设备间内。另外设置一个150m3的高温废水储水池,一个150m3的低温废水储水池,生产废水先排放到废水池内(须安装溢流口),经过沉淀、过滤,供余热回收使用;车间高温罐的用水由供水箱经高温换热系统进一步提升温度后,输送到用水点,然后根据工艺要求采用蒸汽调整到要求水温,低温废水用来提升基础水温后输送给各集热水箱,由此,整个系统大化的利用了热能。 2、集热温差循环 当集热器温度高于集热水箱温度达到设定值,循环泵P1~P20启动,当温差达到停止设定值时,停止循环。 3、定水位补水 当供水水箱的水位低于3水位时,主管电动阀DDF16打开,自来水经过低温换热系统提升水温后,送往各集热水箱,此时,15个分系统补水电动阀DDF1~DDF15中10个集热水箱温度较高的打开,将集热水箱中的热水顶出,汇集到B水箱,当B水箱水位达到4水位,关闭电动阀停止补水。 4、低温水换热 当水箱补水时,系统检测低温废水池的水位,若水位不低于1水位,则同时启动P24将低温废水增压通过换热器换热后排放掉;若低温废水池的水位低于1水位,则P24关闭,停止换热。 5、高温罐供水 当高温用水罐用水时,手动打开进水阀门,同时按下按钮,启动高温供水泵P21,将供水箱中的热水经过高温换热系统进一步提升水温后,送往各高温用水罐。 6、高温水换热 当高温罐用水按下补水按钮时,系统检测高温废水池的水位,若水位不低于1水位,则同时启动P23进行高温换热;若高温废水池的水位低于1水位,P23关闭,停止换热。经高温换热后的废水排放到低温废水池,再次进行低温换热。 7、低温罐供水 当低温用水罐用水时,手动打开进水阀门,同时按下按钮,启动低温供水泵P22,将供水箱中的热水直接送到低温用水罐,或经过高温换热系统进一步提升水温后,送往各低温用水罐,然后再用冷水或蒸汽将水调至所需温度。 8、防冻循环 冬季当集热管路中温度低于5℃时,系统控制循环泵开启进行循环,将水箱内热水打进集热管路;当管道温度升高至10℃时,系统控制关闭循环泵,以防止循环管路冻堵(冬季使用)。 9、高温断续循环 当集热器温度高于95℃,且仅高于水箱温度2~10℃范围内时,泵每循环10分钟,停20分钟(防空晒炸管)。 10、用水供水 在HDG水箱的供水出水端设置变频增压系统,当生产车间打开用水阀门后,变频系统调整水泵的运转,对水池进行增压补水。 11、废水排放 生产完毕后,打开放水阀门将废水排入废水池。 五、直接采光面积计算 式中: ——直接系统太阳集热器采光面积,㎡; ——日均供水量,500000kg; ——储水箱内水的终止温度(用水温度),70℃; ——水的定压比热容,4.18KJ/(㎏•℃); ——水的初始温度,46℃; ——当地太阳能集热器受热面(50°)上9月份晴好天气日总辐照量=20390KJ/㎡ ——太阳能保证率,无量纲,取1; ——太阳集热器全日集热效率,取0.47; ——管路及储水箱热损失率,无量纲,此处取0.15。 经计算:集热面积=5595㎡ 编辑:上海太阳能工程 本文由太阳能热水器厂家-湘宸太阳能公司【www.shyfjn.com】转载太阳能联盟网后整理发布,如需转载,请注明出处。 如果您有太阳能方面的需求,也可以直接与我们郑工联系:15821413123